厚木市、海老名市中心のテナント|西田コーポレーション > オーイズミホールディンクス厚木ビル

オーイズミホールディンクス厚木ビル 6F

物件紹介

本厚木駅から徒歩3分のバス通りに面した事務所物件です。1フロア1テナント!共用部トイレは男女別トイレとなります。

賃料/坪単価
858,330 /
0.94万円
坪数/面積
91.80坪 /
303.48㎡
所在階
6階
管理費・共益費
-
保証金
6ヶ月
礼金
1ヶ月
  • お問い合わせ
  • 来店予約
  • 検討リストに追加

PHOTO GALLERY

印刷する
  • 【外観】 | オーイズミホールディンクス厚木ビル

    【外観】

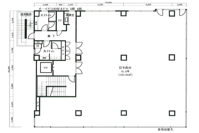
  • 【間取り】 | オーイズミホールディンクス厚木ビル

    【間取り】

  • 【外観】 | オーイズミホールディンクス厚木ビル
  • 【外観】 | オーイズミホールディンクス厚木ビル
  • 【外観】 | オーイズミホールディンクス厚木ビル
  • 【設備】 | オーイズミホールディンクス厚木ビル

※写真や図と実際の現状とが異なる場合は現状を優先させていただきます。

設備条件

  • 事務所可
  • 分割可
  • 法人可
  • ワンフロア
  • スクール向け
  • IT向け
  • 重飲食不可
  • 飲食不可
  • 都市ガス
  • 公営水道
  • 公共下水
  • エレベーター
  • 電気有
  • 機械警備
  • 男女トイレ別
  • エアコン

お問い合わせ

株式会社西田コーポレーション

046-223-5000

  • 〒243-0018
  • 神奈川県厚木市中町2丁目3-1 1F

9:30〜17:00  定休日:日曜日

物件概要

【事務所】 物件番号:91595337 情報更新日:2026年04月10日 次回更新予定日:2026年04月24日
所在地 神奈川県厚木市中町3丁目6-17
交通
賃料/坪単価 85.833万円/0.94万円 坪数(面積) 91.80坪(303.48㎡)
管理費・共益費 - 敷金/礼金/保証金 0ヶ月/1ヶ月/6ヶ月
償却/敷引 1ヶ月/- 更新料 1ヶ月(新賃料)
権利金/雑費 -/-
造作譲渡金 - 駐車場/月額料金 無/-
保険加入/料金 有/- 保険名/保険期間 -/-
保証人代行義務/利用料 任意加入/ 初回:100%、年間:10%(保証会社により変更になる場合がございます。) 保証会社 ジェイリース
保証会社詳細 - 向き -
築年月(築年数) 1987年 9月 (築38年) 契約期間 定期借家 5年
種別/構造 事務所/鉄筋コンクリート 部屋/所在階/階建 6F/6階/7階建
総戸数 - 現況/引渡時期 空家/即時
取引態様 一般媒介 用途地域 商業
物件番号 91595337 取引条件の有効期限 2026年04月24日
設備条件
  • 事務所可
  • 分割可
  • 法人可
  • ワンフロア
  • スクール向け
  • IT向け
  • 重飲食不可
  • 飲食不可
  • 都市ガス
  • 公営水道
  • 公共下水
  • エレベーター
  • 電気有
  • 機械警備
  • 男女トイレ別
  • エアコン
備考 内装:事務所仕様(タイルカーペット)
専有面積:91.80坪(303.48㎡)※うち共用部トイレ廊下等37.37㎡を含む
2分割相談可能(A:35.45坪、B:56.35坪)※分割する場合、入居時期はご相談
償却:退去時、税込賃料1ヶ月分
取扱会社
  • 株式会社西田コーポレーション
  • 神奈川県厚木市中町2丁目3-1 1F
  • TEL:046-223-5000
  • 神奈川県知事 (13) 第8932号
QRコード

QRコード

このQRコードを読み取ることで、スマホでも物件情報を確認できます。

地図

※地図上に表示される物件の位置は付近住所に所在することを表すものであり、実際の物件所在地とは異なる場合がございます。

物件お問い合わせ

必要項目の入力

0/0
必須項目完了

確認画面へ
お進み下さい

0/0
必須項目完了

確認画面へ
お進み下さい

お名前

必須

メールアドレス

必須

電話番号

任意

要望

任意

内容

任意

利用規約及びプライバシーポリシーを必ずお読みください。左記内容に同意いただいた場合は、確認画面へお進み下さい。

未入力項目があります

この物件を見た人はこちらの物件も見ています

高砂ビル

高砂ビルの画像

賃料
73.4426万円
種別
事務所
住所
神奈川県厚木市中町3丁目
交通
本厚木駅
徒歩3分

マルイチビル

マルイチビルの画像

賃料
72.1627万円
種別
事務所
住所
神奈川県厚木市酒井
交通
本厚木駅

TYG第2泉町ビル

TYG第2泉町ビルの画像

賃料
41.962万円
種別
事務所
住所
神奈川県厚木市泉町
交通
本厚木駅
徒歩3分

YAGI BLDG,

YAGI BLDG,の画像

賃料
21.1395万円
種別
事務所
住所
神奈川県厚木市中町4丁目
交通
本厚木駅
徒歩3分

お問い合わせ

株式会社西田コーポレーション

会社画像

046-223-5000

9:30〜17:00  定休日:日曜日

  • 〒243-0018
  • 神奈川県厚木市中町2丁目3-1 1F

物件リクエスト

来店予約

トップへ戻る

来店予約